Property Tools
MASSIVE LIVING ZONE
*** CLICK on our YouTube VIDEO LINK below for a walk through tour ***
ONLINE APPLICATIONS WELCOME, VIEW VIDEO & APPLY
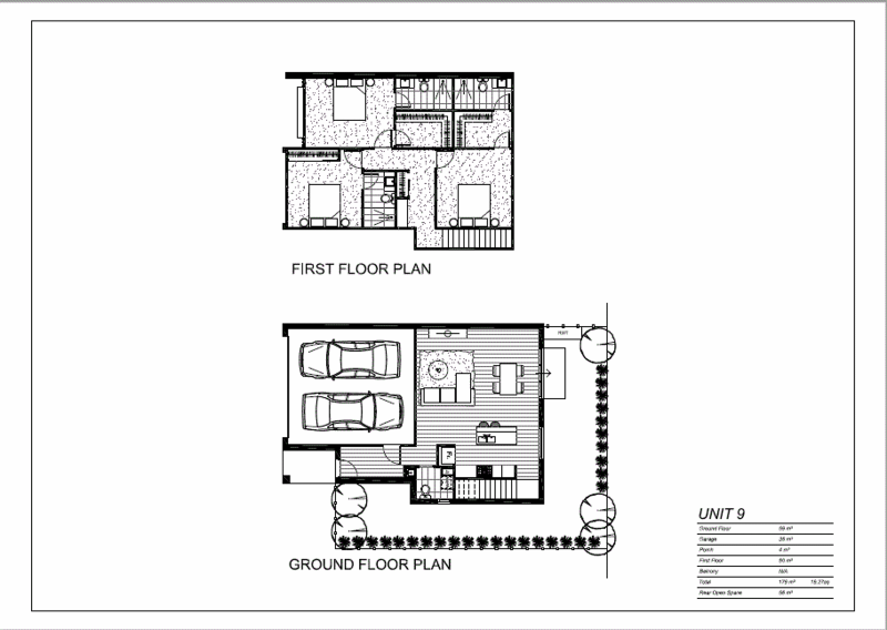
Located in a quiet secluded closed ended quiet street this one year old double storey THREE bedroom THREE BATHROOM plus powder room top end townhouse with secure remote garage parking for two cars is an opportunity not to be missed.
Walk through the security front door into the wooden floored large entrance hall into the oversized living area which provides multiple floorplan options with multiple tv points. The sliding doors open to the private landscaped courtyard complete with clothes line and storage shed.
The kitchen features above grade 5 burner Smeg gas cooktop, huge electric oven, dishwasher and plenty of storage whilst finished stylishly with a mirrored splashback and designer pendant lighting over the gorgeous stone benchtop.
Up the carpeted stairs you'll find three oversized bedrooms, walk in robes and individual ensuites.
Featuring security door, alarm, video intercom, blinds and flyscreens throughout plus individual reverse cycle units in the living and each bedrooms.
Located within close proximity to transport and shopping, this amazing residence won't last long.
AVAILABLE NOW
Register to Inspect AND email applications to applications@changingplaces.com.au
