Property Tools
DOUBLE STOREY TOWN RESIDENCE WITH GRASSED COURTYARD
ONLINE APPLICATIONS WELCOME, VIEW VIDEO & APPLY
*** CLICK on our YouTube VIDEO LINK below for a walk through tour ***
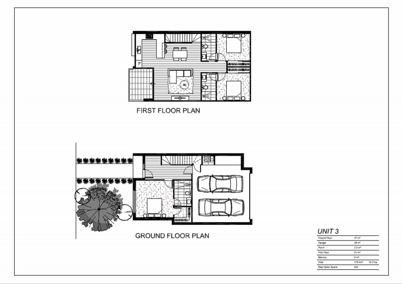
Located in a quiet secluded closed ended quiet street this 1yr old double storey THREE bedroom THREE BATHROOM top end townhouse with secure remote garage parking for TWO cars is an opportunity not to be missed.
Walking down the path of your private fully landscaped gated front garden and into the front door into a light and bright double storey town house designed with privacy and flexibility in mind.
The ground floor features a very, very large master bedroom complete with its own walk in robe and ensuite.
This can easily be transformed into a fully functional home office.
The living zone is located at the front of the first floor allowing plenty of light to filter into the kitchen and living areas which provides multiple floorplan options with multiple tv points. The sliding doors open to the oversized entertainer's balcony.
The kitchen features above grade 5 burner Smeg gas cooktop, huge electric oven, dishwasher and plenty of storage whilst finished stylishly with a mirrored splashback and designer pendant lighting over the gorgeous stone benchtop.
On the same floor you'll find two further oversized bedrooms, walk in robes and individual ensuites.
Featuring security door, alarm, video intercom, blinds and flyscreens throughout plus individual reverse cycle units in the living and each bedrooms.
Located within close proximity to transport and shopping, this amazing residence won't last long.
AVAILABLE NOW
Register to Inspect AND apply via email to applications@changingplaces.com.au
