Property Tools
LET ME ENTERTAIN YOU
*** CLICK on our YouTube VIDEO LINK below for a walk through tour ***
REGISTER TO INSPECT & 1-Form applications MUST be EMAILED to applications@changingplaces.com.au
Located in the much touted, 'Sunday' development with direct access to the 500sqm of common landscaped area including pool deck, spa, and bbq zone, and all perfectly placed to the glamour and glitz of the CBD providing the ultimate in convenience and the perfect location for those who want everything out of life.
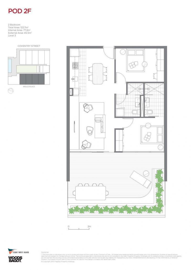
Expansive, light-filled living is complimented by a quality kitchen with plenty of bench space and an open design. Stainless steel Miele appliances (gas stove, electric oven and dish drawer) are integrated with glossy streamlined cabinetry. Unsurpassed outdoor/indoor living with sliding glass doors opening to huge terrace, finished in timber, adding to the feeling of space and openness and ensuring a great place to entertain. With two double bedrooms each with fitted built in robes (Master with ensuite), central bathroom and laundry facilities.
Features include video intercom security, ducted heating & cooling, secure parking on title, large storage cage, and national broadband capabilities.
AVAILABLE NOW
