Property Tools
I'm seeing double... double garage, double bathrooms, double living
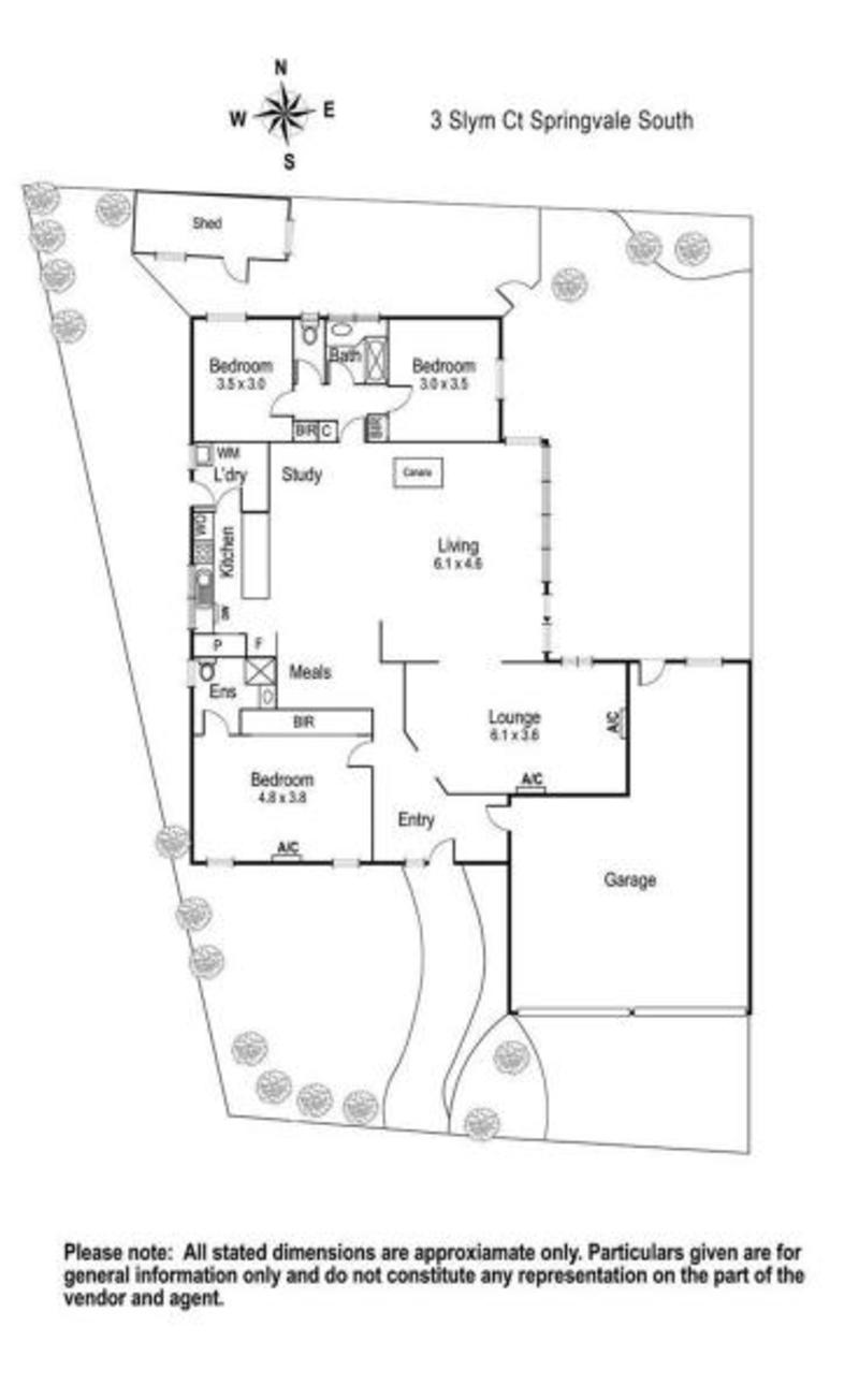
One of its kind in this pocket of Springvale South where two living rooms, two bathrooms and remote double lock up garage are offered. Located in a private and quiet court this family home is a rare kind and will not last for long.
This spacious family home comprising entrance hall, master bedroom with BIR and ensuite, two other bedrooms with BIR, bathroom and separate toilet, kitchen with new stainless steel grill oven and including dishwasher, spacious lounge, huge living with floor to ceiling glass windows providing natural light, and sliding doors to terrace ideal for outdoor dining and entertainment.
Features include ducted heating throughout, air conditioning, ceiling fans, garden shed with electricity connection, bore water, wood log fireplace in the living and remote double lock up garage with internal access.
Position perfect with easy access to the new dandenong bypass, minutes to local shops, springvale cenral and the ever-growing Parkmore SC. Walking distance to many local parks, temples and good local schools that Springvale South has to offer.
You've fallen in love with each other, now fall in love with this
