Property Tools
HOUSE WITH A CHARMING PERSONALITY
A CELEBRATION OF EDWARDIAN ARTISTRY
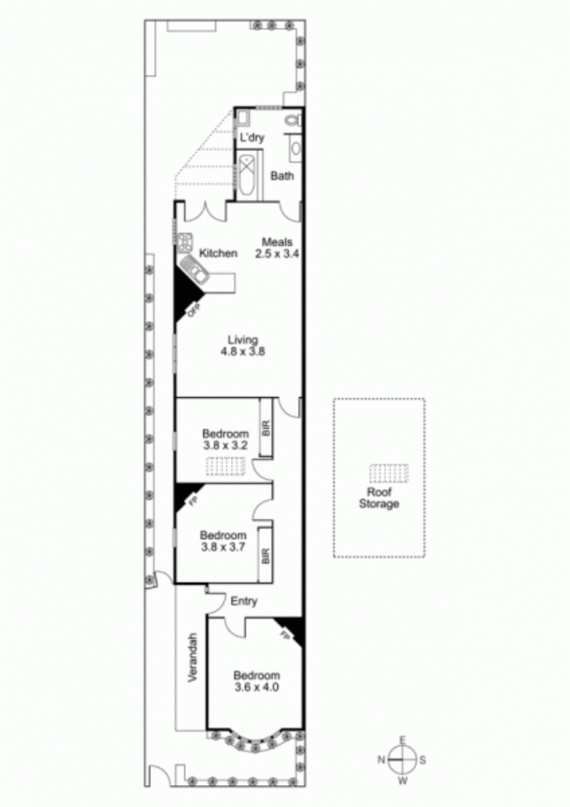
Delightful period detailing and dcor including period fire-places, polished floor boards, gorgeous lead light windows and high ceilings distinguish this welcoming three bedroom solid brick home.
Perfectly placed with all the lifestyle advantages associated with its close proximity to train, tram, bus, schools and Carlisle Street's shops and cafes.
With bright extended spaces comprising veranda entry to hall, three bright and sunny double bedrooms, two with built-in-robes, contemporary bathroom with laundry facilities, spacious living with northern aspect providing lots of natural light and room to relax and updated kitchen/dining area opening to a generous entertainers courtyard and quiet lane at rear.
Also features attic storage and central heating / cooling.
HAPPY HOMECOMING EVERY DAY!
